Three years ago, Jakiah Moore was pregnant with her daughter and became homeless—fleeing domestic violence in Bowling Green and relying on friends and family to take her in.
But there were many other things Moore needed, especially as a 22-year-old homeless woman with no job or resources to help her with her basic needs.
“If you have children without daycare, it's hard to sustain a job,” she argues. “Without being able to sustain your job, it's hard to sustain your housing. So it's like a vicious cycle that with one missing piece everything could crumble.”
Jakiah MooreMoore turned to A Place 4 Me, an Ohio City-based nonprofit dedicated to preventing and ending youth homelessness in Cuyahoga County, for resources. The Ohio City organization connected Moore with a youth navigator, who enrolled Moore in its Opportunity Passport program to open a bank account set up with matching funds, secure an apartment, and pay her first month's rent and security deposit with the money she had saved. A Place 4 Me also provided support through her domestic violence experiences and other life struggles.
Today, Moore is a foster care youth navigator at A Place 4 Me and a REACH Youth Action Board member, living in her own apartment with her daughter, who will be three in April, and her two-year-old son.
Dashed dreams
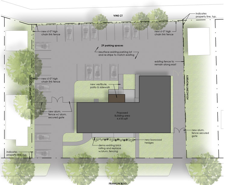
Young people like Moore are the reason why A Place 4 Me in 2021 teamed up with Lutheran Metropolitan Ministry, Cuyahoga County Office of Homeless Services, and Sisters of Charity Foundation of Cleveland to create a Youth Drop-In Center as a space for respite and resources for young people between the ages of 16 and 24 who are experiencing homelessness.
Interior plans for the Drop-In CenterThe center would be a place to come for services, meals, to do laundry, take hot showers, access clothes and basic supplies, or just read and hang out. It will be a place to form relationships and community with other young people.
The Cleveland Board of Zoning Appeals approved plans for the youth drop-in center in March 2023, and plans moved ahead for the youth drop-in center at a building owned by LMM at 4100 Franklin Blvd. in Ohio City. Shortly after the approval, some residents in the neighborhood filed a suit to stop the project—concerned about safety, noise, and litter.
The plans for the Center were halted last month when a Cuyahoga County Common Pleas Court Judge reversed the approval, based on the fact it is in a residential neighborhood.
LMM has appealed the reversal with the City of Cleveland, and A Place for Me assistant director Christie Sozio says the project team is open to mediation as the next step in the appeals process.
Misconceptions and unfounded fears
If mediation is unsuccessful, the case will go before a three-judge panel at the Court of Appeals.
Moore, who currently works out of the very building that would become the Drop-In Center, balks at the implication that the center would cause problems in the neighborhood—explaining that young people experiencing homelessness are primarily focused on finding safety, not causing trouble.
“That is a misconception about youth who are experiencing homelessness—that they're going to cause problems or they're going to be violent or that they're criminals or something like that,” she argues. “Honestly, when you are in a traumatic situation like [homelessness], or you are experiencing some kind of violence yourself, your main concern is where can I go to be safe? It's not to go cause problems or cause harm—especially when you're trying to get your life together. You literally just want someone to tell you it's going to be okay, and I'm here to help.”
Sozio agrees with Moore about the notion of potential safety issues. In fact, she says her agency has never had issues in the communities where they operate.
Christie Sozio, A Place for Me assistant director“It seems [neighbors] have really just unfounded fears about the young people we serve,” says Sozio. “We've been in this building for over a year, and we've not had any harm, not had any incidents... We've existed for 10 years and been serving young people just in other locations and have not had [problems].”
Currently, A Place for Me sees young people only by appointment, limiting staff’s ability to help those in immediate crisis. The organization serves primarily unaccompanied youth, with about 30% being young parents themselves.
Sozio also agrees with Moore’s point that the young people A Place 4 Me serves are focused on their own safety and simply want to be part of the community.
"We hear from young people, they're focused on their own safety,” she explains. “They're not trying to cause any harm. They're just trying to come and go safely. And that's why they want to be in a neighborhood like Ohio City. They want a community. They want to feel welcome. They don't want to feel relegated to an industrial neighborhood or feel like they're cast out.”
Overcoming challenges
While the Drop-In Center wasn’t an option for Moore, she says the delicate balance between being employed and accessing everyday needs is a challenge for anyone experiencing homelessness—especially young people who haven’t had a lot of experience yet.
“Just the very basic things that you or I would take for granted, or any other person who has been able to sustain a job would take for granted, are a lot of the main things that young adults are worried about on a day-to-day basis,” she explains. “Being able to eat every day, being able to wash their clothes—you never think about that.”
The center has received funding from various sources, including Cuyahoga County, private foundations, and individual donors. Cleveland design firm Bialosky and Brook Park-based Regency Construction were selected as project partners.
The delays have created additional challenges and frustration, notes Sozio. “We were really close to ready to go right after the Board of Zoning Appeals hearing a couple years ago," she says. “We were as far as having job descriptions ready to go for hiring staff.”
Moore also awaits the next steps, as she continues to advocate for expanded youth services while helping clients navigate the same challenges she once faced herself.
